Bifamiliare in vendita a Urbana
Rif: BIF 481
- Prezzo150.000
- ComuneUrbana
- Contrattovendita
- Bagni2
- Camere3
- Mq210
- Classe energeticaG
- I.P.E
0 kWh / sqm / year
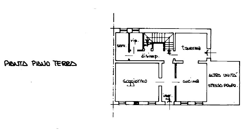
Proponiamo in vendita a Urbana, località San Salvaro, spaziosa abitazione accostata, situata in una zona tranquilla ma comoda alle principali vie di comunicazione. L'immobile è caratterizzato da dettagli rustici, come i soffitti con travi a vista che donano calore agli ambienti e i pavimenti in cotto.
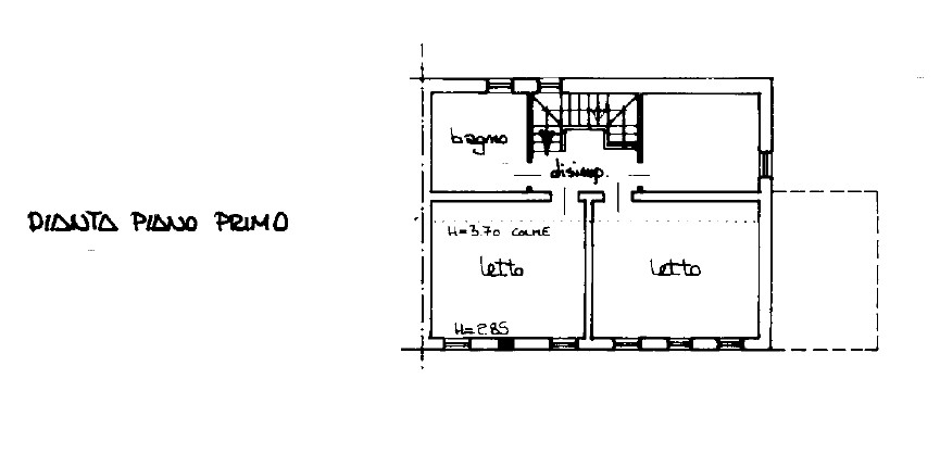
La proprietà offre spazi ben distribuiti con: doppio ingresso, cucina, soggiorno, salotto, bagno e due ripostigli al piano terra; al primo piano incontriamo due camere da letto matrimoniali, camera singola e un secondo bagno. Completa la proprietà un garage.
All’esterno troviamo un grande giardino piantumato esclusivo, con cortile e posto auto.
Proposta ideale per chi cerca una soluzione dalle ampie metrature con area verde a disposizione!!!
Per informazioni contattare l'Agenzia OBIETTIVO CASA di Ospedaletto Euganeo Via Roma Est, 4 al numero 0429.670785 oppure ad info@obiettivo-casa.info
Ambienti
| Soggiorno |
|
| Cucina |
|
| Taverna |
|
| Ripostigli |
2 |
| Garage |
|
| Giardino |
|
Livelli & comfort
| Livelli |
Piano terra , Primo piano |
| Riscaldamento autonomo |
|
| Ingresso indipendente |
|
| Animali ammessi |
|
Per maggiori informazioni