Casa singola in vendita a Piacenza d'Adige
Rif: CS 864
- Prezzo160.000
- ComunePiacenza d'Adige
- Contrattovendita
- Bagni2
- Camere5
- Mq235
- Classe energeticaG
- I.P.E
145.25 kWh / sqm / year
Proponiamo in vendita a Piacenza D'Adige, spaziosa soluzione indipendente con cortile e giardino esclusivo.
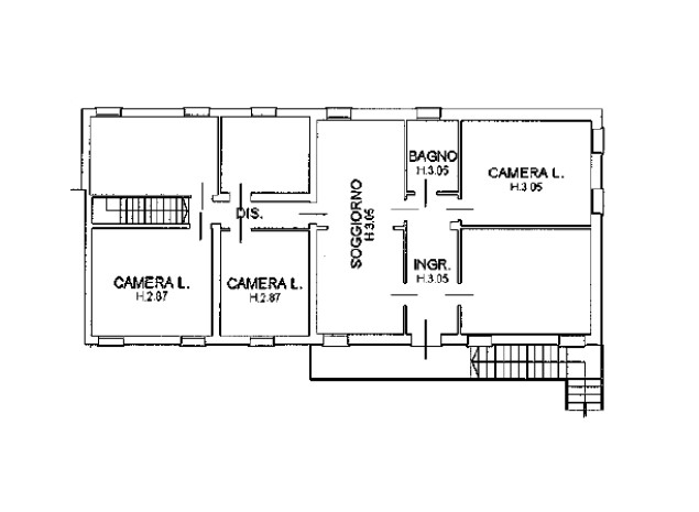
L'immobile, sviluppato su due livelli, presenta ingresso al primo piano con grande cucina, soggiorno, cinque camere da letto, da poter destinare a vari utilizzi a seconda delle proprie necessità e un bagno. Al piano terra, direttamente collegato con l'interno della casa troviamo una seconda cucina, un salotto, bagno e centrale termica.
La proprietà include anche vari annessi, tra cui un grande garage, cantina con camino e un ampio magazzino di circa 128 mq.
Ad aprile 2025 sono state apportate delle migliorie all'immobile, come il rifacimento di un bagno.
Interessante opportunità per chi cerca un'abitazione dagli ampi spazi interni ed esterni. Bella occasione!!!
Per informazioni contattare l'Agenzia OBIETTIVO CASA di Ospedaletto Euganeo Via Roma Est, 4 al numero 0429.670785 oppure a info@obiettivo-casa.info
Ambienti
| Soggiorno |
|
| Cucina |
|
| Taverna |
|
| Garage doppio |
|
| Posto auto |
|
| Giardino |
|
Livelli & comfort
| Livelli |
Piano terra , Primo piano |
| Aria condizionata |
|
| Riscaldamento autonomo |
|
| Camino |
|
| Ingresso indipendente |
|
| Animali ammessi |
|
Per maggiori informazioni