Rustico in vendita a Borgo Veneto
Rif: RUST 230
- Prezzo93.000
- ComuneBorgo Veneto
- Contrattovendita
- Bagni1
- Camere4
- Mq300
- Classe energeticaNs
- I.P.E
0 kWh / sqm / year
Proponiamo in vendita a Borgo Veneto, località Megliadino San Fidenzio, casale di campagna ubicato in una posizione strategica, e comodo a tutte le principali arterie stradali.
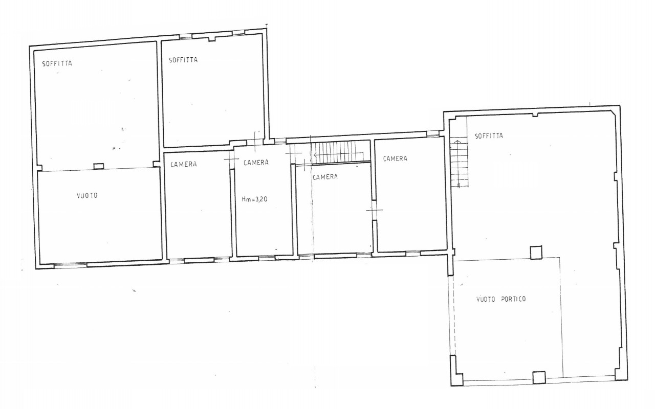
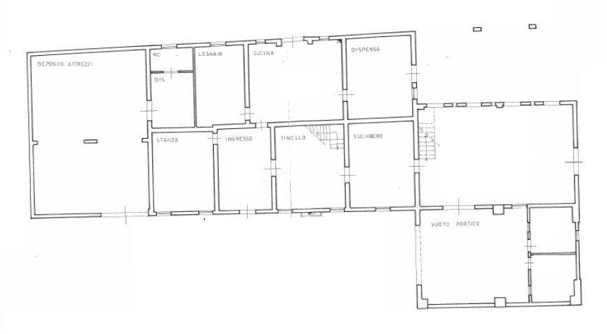
L'abitazione, ancora al grezzo, è caratterizzata al piano terra da: ampia zona giorno, con ingresso, cucina, salotto, dispensa, tinello, bagno e altri locali di sgombero. Al piano primo si sviluppa la zona notte con tre camere matrimoniali, una singola e varie stanze adibite a ripostiglio e soffitta. A servizio dell'immobile una barchessa con stalla, porticato e un grande magazzino.
Proposta interessante, sia per le ampie metrature interamente personalizzabili che per il vasto scoperto di proprietà di circa 2800 mq.
Da vedere!!!
Per informazioni contattare l'Agenzia OBIETTIVO CASA di Ospedaletto Euganeo Via Roma Est, 4 al numero 0429.670785 oppure a info@obiettivo-casa.info
Ambienti
| Soggiorno |
|
| Cucina |
|
| Mansarda |
|
| Taverna |
|
| Soffitta |
|
| Ripostigli |
2 |
| Cantina |
|
| Garage doppio |
|
| Posto auto |
|
| Giardino |
|
Livelli & comfort
| Livelli |
Piano terra , Primo piano |
| Riscaldamento autonomo |
|
| Ingresso indipendente |
|
Per maggiori informazioni