Rif: TER 288
- Prezzo35.000
- ComuneEste
- Contrattovendita
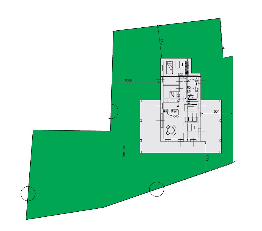
- Mq800
- Classe energeticaNs
- I.P.E 0 kWh / sqm / year
Descrizione
Stai cercando l'opportunità perfetta per costruire la casa dei tuoi sogni? Proponiamo in vendita a Este, località Prà, terreno edificabile di circa 800 mq. Il lotto offre già un progetto per realizzare una splendida abitazione su due livelli con grande giardino esclusivo.
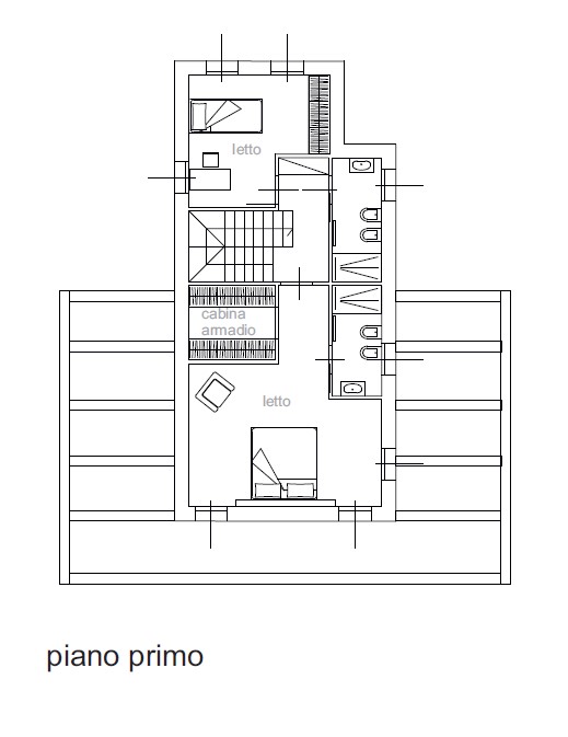
Il progetto prevede una soluzione indipendente in cui al piano terra troviamo: zona giorno open space con cucina, bagno e una stanza. Al primo piano due spaziose camere da letto dotate di cabina armadio e due bagni di servizio.
La posizione strategica del terreno dista pochi minuti dal centro di Este e da tutti i servizi.
Per informazioni contattare l'Agenzia OBIETTIVO CASA di Este via Padana Inferiore n. 2 al numero 0429.51983 oppure a info@obiettivo-casa.info

